logo
Przetargi » Przetargi na roboty budowlane
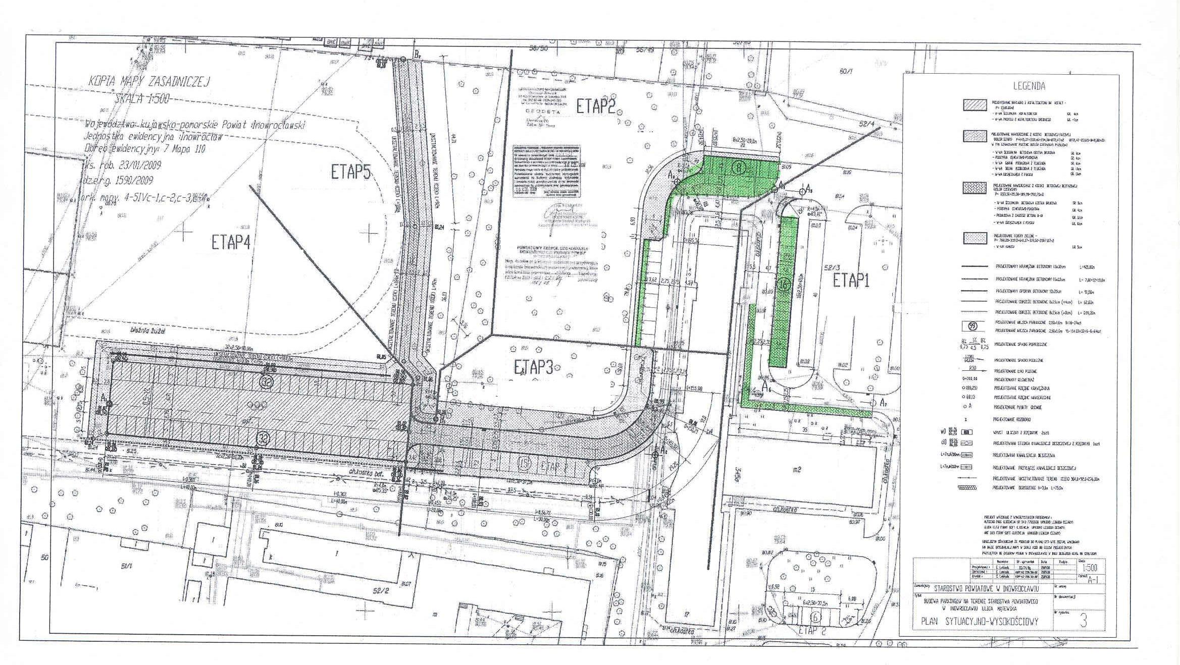
Budowa parking贸w na terenie Starostwa Powiatowego w Inowroc艂awiu przy ul. M膮tewskiej 17



 
TypRozmiarPobierzKomentarzData dodaniaLicznik 
.DOC53 KB POBIERZOg艂oszenie do prasy i na tablic臋2010-04-07 14:24:03367
.DOC81 KB POBIERZWz贸r umowy2010-04-07 14:24:13445
.DOC32 KB POBIERZO艣wiadczenie o spe艂nianiu warunk贸w2010-04-07 14:24:27465
graf.565.6 KB POBIERZPlan2010-04-07 14:25:13458
.DOC141.5 KB POBIERZSIWZ2010-04-07 14:25:25478
.DOC42.5 KB POBIERZO艣wiadczenie o braku podstaw do wykluczenia2010-04-07 14:25:42437
.DOC46 KB POBIERZWz贸r oferty na roboty budowlane2010-04-07 14:26:02441
.DOC29 KB POBIERZO艣wiadczenie w zakresie art. 24 ust. 1 pkt 2 ustawy2010-04-07 14:26:17426
.ZIP2238.7 KB POBIERZPrzedmiary,przekroje,opisy techniczne2010-04-07 14:28:42475
?299.7 KB POBIERZOg艂oszenie o wyborze najkorzystniejszej oferty2010-05-07 15:01:49429

Autor : 呕aneta Walczak-Borowska
Zredagowa艂(a) : 艁ukasz Smole艅
Data wprowadzenia : 2010-04-07 14:03:01
Data ostatniej modyfikacji : 2010-04-07 14:03:01
Liczba wy艣wietle艅 : 2316



licznik odwiedzin: 19362777